Start
Bauen mit FMB
Planung
Qualitätssicherung
Baucontrolling
Unsere Philosophie
Leistungen
Bauvorschläge
FMB 124
FMB 125
FMB 133
FMB 136
FMB 143
FMB 147
FMB 152
FMB 156
FMB 166
FMB DHH
FMB Bungalow
Hausfinder
Aktuelles
Referenzen
Referenzobjekte
Kundenstimmen
Kontakt
FMB 152
Projekt-Beschreibung
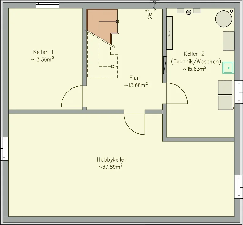
Projekt-Details
Kniestock: 0 m
Dachneigung: 26°
Grundfläche: 99,66 m
2
Wohnfläche EG: 79,09 m
2
Wohnfläche OG: 73,81 m
2
Wohnfläche gesamt: 152,90 m
2
Wohnnutzfläche: 152,90 m
2
Nutzfläche KG: 80,55 m
2
Details
Zimmeranzahl
:
5
Wohnnutzfläche
:
151 - 160 m²
Haustyp
:
Einfamilienhaus
FMB
:
info@franken-massivbau.de
Weitere Informationen
Name *
Email *
Telefon *
Ihre Nachricht *
Ich bin damit einverstanden, dass die FMB Franken Massivbau GmbH meinen Namen, meine E-Mail-Adresse und meine Telefonnummer erfasst. Es gelten die Bestimmungen der DSGVO.
Nachricht senden
E-Mail senden, bitte warten ...